Продам помещение свободного назначения 1389.9 м.кв.

на карте
Объявление в архиве
11 974 500 руб.
на 84% дешевле похожих объектов ?
Челябинск , город Челябинск, Бродокалмакский тракт, д.6
Муратова Анна
Контактные данные скрыты, так как объявление находится в архиве
Данные актуальны на 23.09.2025
Пожаловаться на объявление
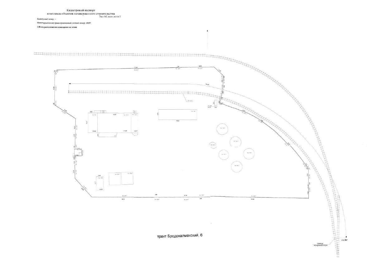
Код лота: РАД-290732. Реализуется на торгах. Предлагаем объект незавершенный строительством (кадастровый номер: 74: 36: 0206001: 97) , назначение: нежилое, площадь застройки: 1389,9 кв. м. Степень готовности объекта незавершенного строительства: 67%. Адрес расположения: Челябинская область, г. Челябинск, Бродокалмакский тракт, д. 6. Объект представляет собой комплекс зданий и сооружений и является многоконтурным, в состав входят: - насосная станция топлива площадью застройки 359,7 кв. м; - склад масел с АБК площадью застройки 909,4 кв. м; - насосная станция пожаротушения площадью застройки 84,9 кв. м; - контрольно-пропускной пункт площадью застройки 35,9 кв. м; - ограждение протяженностью 683 м. Объект незавершенного строительства расположен на земельном участке с кадастровым номером 74: 36: 0206001: 58 площадью 26 592 кв. м, предоставлен ОАО «МРСК Урала» на праве аренды. Объект незавершенного строительства расположен на земельном участке с кадастровым номером 74: 36: 0206001: 58 площадью 26 592 кв. м, предоставлен ОАО «МРСК Урала» на праве аренды. С информацией по лоту Вы можете ознакомиться на ЭТП РАД Lot-online КОД ЛОТА: https: //catalog. lot-online. ru/index. php?dispatch=products. view&product_id=643663

Дополнительная информация

Тип здания - Этаж 2 Этажность 1 Количество комнат - Вход - Ремонт -
Интернет - Кондиционер - Вентиляция - Пожарная сигнализация - Красная линия -
Динамика изменения цен на рынке недвижимости ?

По городу Челябинск, в категории Универсальные помещения
За последние полгода средняя сумма за кв.м. выросла на 170 руб. Колебание цен происходило от 50873 руб. до 51672 руб. На текущий момент наблюдается тенденция к уменьшению цены.
Вход в личный кабинет